- Accueil
- Vente
- Bouches du rhone
- Marseille
- St Marguerite - Maison de 200 m² à terminer
Référence : Mar
Calculette
Partager
St Marguerite - Maison de 200 m² à terminer
Description de l'offre
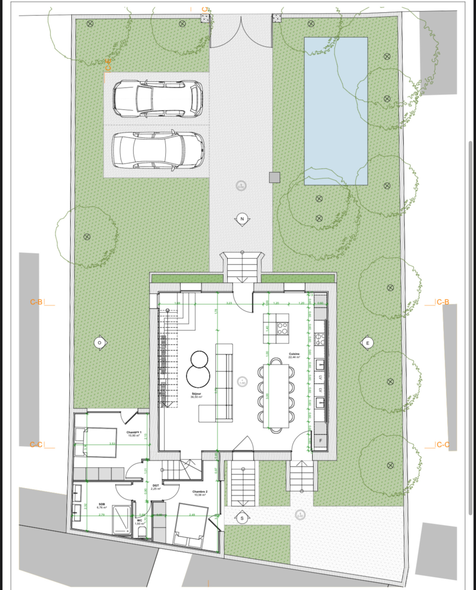
St Marguerite - Terrain de 457 m² avec une maison 200 m² habitables à finir Nous vous proposons à la vente un terrain d’une surface cadastrale de 457 m², sur lequel est édifiée une maison individuelle en R+2 (rez-de-chaussée plus deux étages), d’une superficie totale d’environ 200 m². Le chantier a été entamé : les travaux de gros œuvre sont partiellement réalisés. Le bien est vendu en l’état, nécessitant l’achèvement complet de la construction (second œuvre, finitions). Ce bien offre un potentiel de valorisation important, avec des commodités à proximité. Il est libre de constructeur et permet une grande liberté d’aménagement intérieur. Pour toute information complémentaire ou pour organiser une visite, n’hésitez pas à nous contacter
Descriptif du bien
- Code postal : 13009
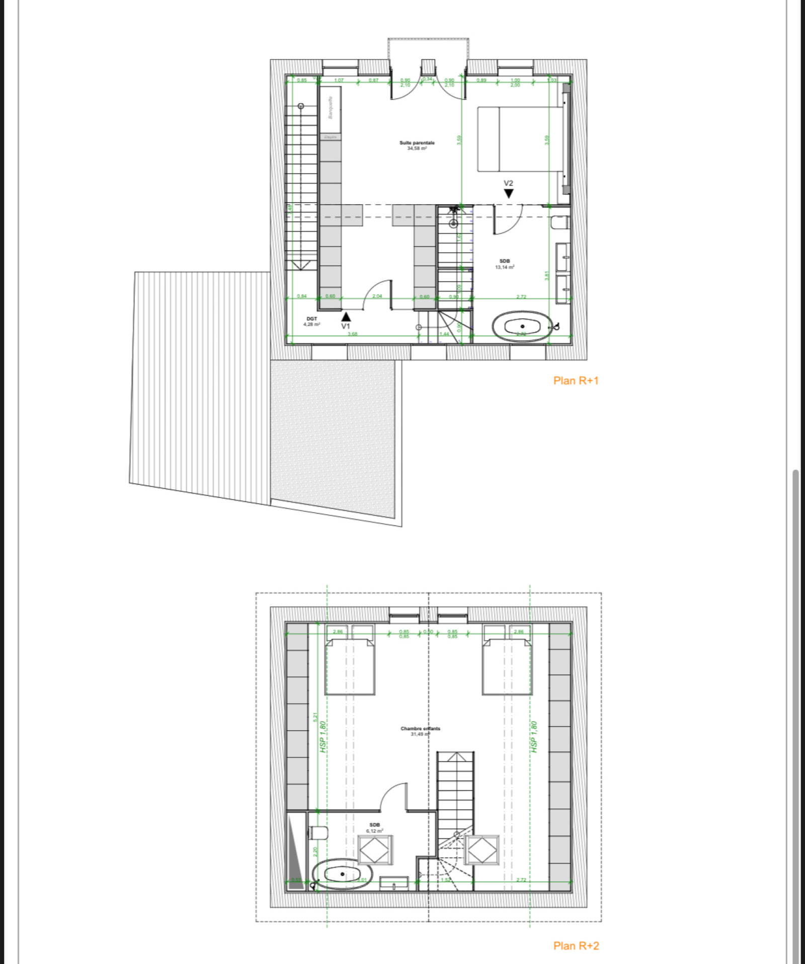
- Surface habitable (m²) : 200 m²
- surface terrain : 457 m²
- Surface loi Carrez (m²) : 175 m²
- Nombre de chambre(s) : 3
- Nombre de pièces : 5
- Nombre de niveaux : 3
- Nb de salle de bains : 1
- Nb de salle d'eau : 1
- Cuisine : SANS
- Terrain piscinable : OUI
- Terrain arboré : OUI
- Prix de vente : 620 000 €
- Les honoraires d'agence seront intégralement à la charge du vendeur
La ville de Marseille (13009)
Nous Contacter
Afficher le téléphone 06.63.97.34.07.Les informations recueillies sur ce formulaire sont enregistrées dans un fichier informatisé par La Boite Immo agissant comme Sous-traitant du traitement pour la gestion de la clientèle/prospects de l'Agence / du Réseau qui reste Responsable du Traitement de vos Données personnelles.
La base légale du traitement repose sur l’intérêt légitime de l'Agence / du Réseau.
Elles sont conservées jusqu'à demande de suppression et sont destinées à l'Agence / au Réseau.
Conformément à la loi « informatique et libertés », vous pouvez exercer votre droit d'accès aux données vous concernant et les faire rectifier en contactant l'Agence / le Réseau.
Si vous estimez, après avoir contacté l'Agence / le Réseau, que vos droits « Informatique et Libertés » ne sont pas respectés, vous pouvez adresser une réclamation à la CNIL.
Nous vous informons de l’existence de la liste d'opposition au démarchage téléphonique « Bloctel », sur laquelle vous pouvez vous inscrire ici : https://www.bloctel.gouv.fr
Dans le cadre de la protection des Données personnelles, nous vous invitons à ne pas inscrire de Données sensibles dans le champ de saisie libre
Ce site est protégé par reCAPTCHA, les Politiques de Confidentialité et les Conditions d'Utilisation de Google s'appliquent.
